

4 Logements et équipement petite enfance
Maître d’ouvrage / Privée
Maître d’oeuvre / LAPS Architecture
Mission / Complète
Calendrier / Livraison prévue Décembre 2015
Surface SHON / 450 m²
Programme / Création de quatre logements

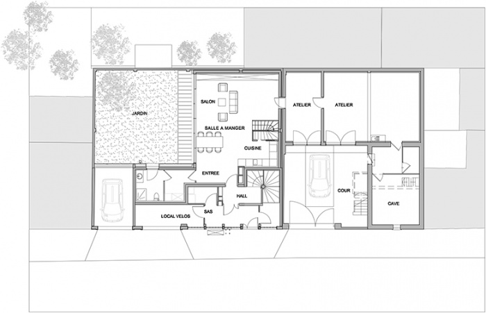
Le projet porte sur le surélévation d’une ancienne usine transformée en logement et sur la transformation de deux garages en atelier dans une maison existante.
Le projet tend à construire une façade composée et harmonieuse qui puisse s’insérer de façon discrète et raisonnée dans le quartier. Les quatre façades de l’usine actuelle sont conservées, alors que la toiture à deux pans est démolie. Grâce à la surélévation, le projet organise un petit bâtiment collectif de 4 logements autour d’un jardin intérieur.
Trois logements côté rue du R+1 au R+3 s’organisent dans la longueur du bâtiment. Celui en R+3 Profite en plus d’une mezzanine et d’une grande terrasse. La terrasse est conçue comme un patio clos, réduisant ainsi l’impact sonore et limitant les vues sur les espaces privatifs avoisinants.
Côté cour, la maison se développe sur deux niveaux et donne sur un jardin intérieur. Le rez-de-chaussée s’ouvre sur le jardin par une grande baie vitrée coulissante et est éclairé par une faille lumineuse qui prend naissance en toiture. Tous les espaces sont éclairés par la lumière naturelle.