
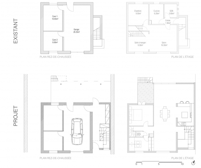
Le projet s’insère dans un tissu pavillonnaire à environ 35km à l’Ouest de Paris. L’extension ne tend pas à multiplier le nombre de pièce mais à organiser un espace de vie généreux et orienté sur le jardin au Sud de la parcelle.

Ainsi, le projet développe un «ruban», bardé de bois, qui vient envelopper la maison existante maçonnée en formant un «L». Le nouveau volume recréer une
entrée à rez-de-chaussée en double hauteur ainsi qu’un accès direct au jardin, et un dressing. A l’étage, l’extension organise un grand espace séjour, salle à manger, cuisine et une terrasse surplombant l’espace végétalisé extérieur, cette dernière étant partagée à la fois par le salon et la chambre parentale. Accolé à
la limite séparative, le projet se développe sur des pilotis en béton,
permettant la conservation de la silhouette de l’édifice original. La visibilité des murs de l’existant perdure et relate l’historicité du lieu, à l’intérieur. L’espace
extérieur sous la dalle du séjour permet d’envisager une extension future. Le volume d’entrée, côté rue, s’insère le plus discrètement possible entre la maison et existante et le mur séparatif de la parcelle, tandis qu’il se développe
sur l’ensemble de la façade côté jardin. Un ravallement des façades existantes a aussi été faite de manière à retrouver une teinte blanche, légèrement grisée, qui
s’harmonise avec le bardage en pin autoclave qui grisera avec le
temps.