Menu
Un projet réalisé par :CcommeC  Architecte à Annecy

restaurant épicerie 181

 Annecy - 74
CcommeC
Accueil Projets restaurant épicerie 181

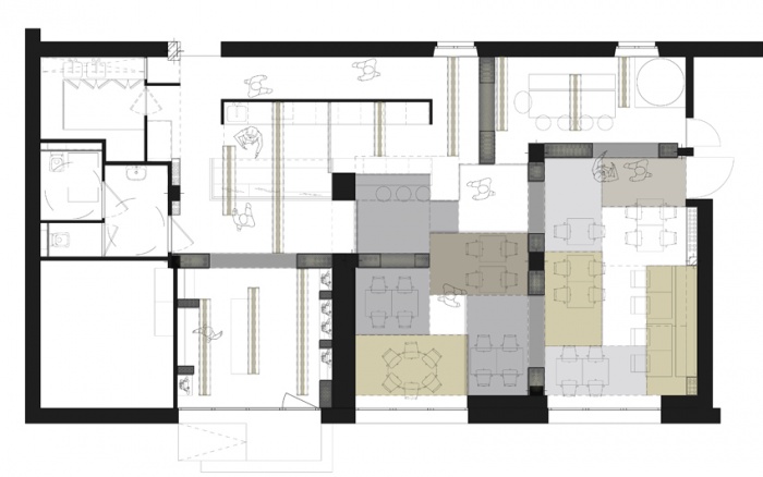
restructuration totale d’un restaurant avec adaptation du concept épicerie/bar/restaurant - hors mobiliers - en collaboration avec ScènedeVie Annecy

restaurant épicerie 181

L’accent est porté sur le traitement des faux-plafonds : dans les zones épicerie /bar/salle de dégustation des réserves, laissant apparaître les anciennes poutres, créent des lignes lumineuses et dynamiques tandis que dans la zone restaurant des caissons et des cloisons-arcs à différents niveaux traduisent un espace plus rythmé.
Les couleurs, le traitement de la lumière restent au service des produits exposés et/ou dégustés.

  • restaurant épicerie 181 : 181-0
  • restaurant épicerie 181 : 181-00
  • restaurant épicerie 181 : image_projet_mini_53068
  • restaurant épicerie 181 : 181-2.JPG
  • restaurant épicerie 181 : 181-4.JPG
  • restaurant épicerie 181 : 181-5.JPG
  • restaurant épicerie 181 : image_projet_mini_53091
  • restaurant épicerie 181 : 181-7
  • restaurant épicerie 181 : 181-8
  • restaurant épicerie 181 : 181-9
  • restaurant épicerie 181 : image_projet_mini_53089
  • restaurant épicerie 181 : 181-11
  • restaurant épicerie 181 : 181-12
  • restaurant épicerie 181 : 181-13
  • restaurant épicerie 181 : 181-14.JPG
  • restaurant épicerie 181 : 181-15.JPG
  • restaurant épicerie 181 : 181-16.JPG

Trouvez un architecte pour votre projet

Protection de vos données personnelles

Depuis toujours, architectes-france.com ne transfère aucune donnée personnelle à d'autres acteurs que ceux directement concernés par le projet (architectes, architectes d'intérieur...) et qui appartiennent à son réseau. Nos listes ne sont jamais transmises ou vendues à des partenaires extérieurs, même si ceux-ci appartiennent au domaine de la construction.
Toute modification dans ce domaine ne serait effectuée qu'avec votre consentement.

Je consens à ce que mes données personnelles soient collectées pour permettre à architectes-france de transférer votre projet aux architectes. Seul Architectes-france, ses équipes internes et la maitrise d'oeuvre concernée par le projet y ont accès. Aucune transmission de données à des tiers à l'exclusion de ceux décrits ci dessus n'est réalisée.

Mes données téléphoniques seront uniquement utilisées par Architectes-france.com et les architectes de notre réseau dans le cadre de la qualification et du suivi de mon projet.

Les données sont conservées pendant une durée de 18 mois courant à partir des derniers contacts effectifs entre architectes-france et vous ou architectes-france et un membre de la maitrise d'oeuvre en rapport avec ce projet et qui serait en relation avec architectes-france.

Conformément à la loi « informatique et libertés », vous pouvez exercer votre droit d'accès aux données vous concernant et les faire rectifier en contactant : Architectes-france, 23 avenue du Mirail - parc du Mirail - 33370 Artigues-près Bordeaux. Tél. 05.47.74.51.01 - contact@architectes-france.com

Trouvez un architecte pour votre projet

Protection de vos données personnelles

Depuis toujours, architectes-france.com ne transfère aucune donnée personnelle à d'autres acteurs que ceux directement concernés par le projet (architectes, architectes d'intérieur...) et qui appartiennent à son réseau. Nos listes ne sont jamais transmises ou vendues à des partenaires extérieurs, même si ceux-ci appartiennent au domaine de la construction.
Toute modification dans ce domaine ne serait effectuée qu'avec votre consentement.

Je consens à ce que mes données personnelles soient collectées pour permettre à architectes-france de transférer votre projet aux architectes. Seul Architectes-france, ses équipes internes et la maitrise d'oeuvre concernée par le projet y ont accès. Aucune transmission de données à des tiers à l'exclusion de ceux décrits ci dessus n'est réalisée.

Mes données téléphoniques seront uniquement utilisées par Architectes-france.com et les architectes de notre réseau dans le cadre de la qualification et du suivi de mon projet.

Les données sont conservées pendant une durée de 18 mois courant à partir des derniers contacts effectifs entre architectes-france et vous ou architectes-france et un membre de la maitrise d'oeuvre en rapport avec ce projet et qui serait en relation avec architectes-france.

Conformément à la loi « informatique et libertés », vous pouvez exercer votre droit d'accès aux données vous concernant et les faire rectifier en contactant : Architectes-france, 23 avenue du Mirail - parc du Mirail - 33370 Artigues-près Bordeaux. Tél. 05.47.74.51.01 - contact@architectes-france.com