Menu
Un projet réalisé par :Emma Saintonge  Architecte à Saint-Ouen

Surélévation pour création d'un duplex avec terrasse

 Saint-Ouen - 17
Emma Saintonge
Accueil Projets Surélévation pour création d'un duplex avec terrasse

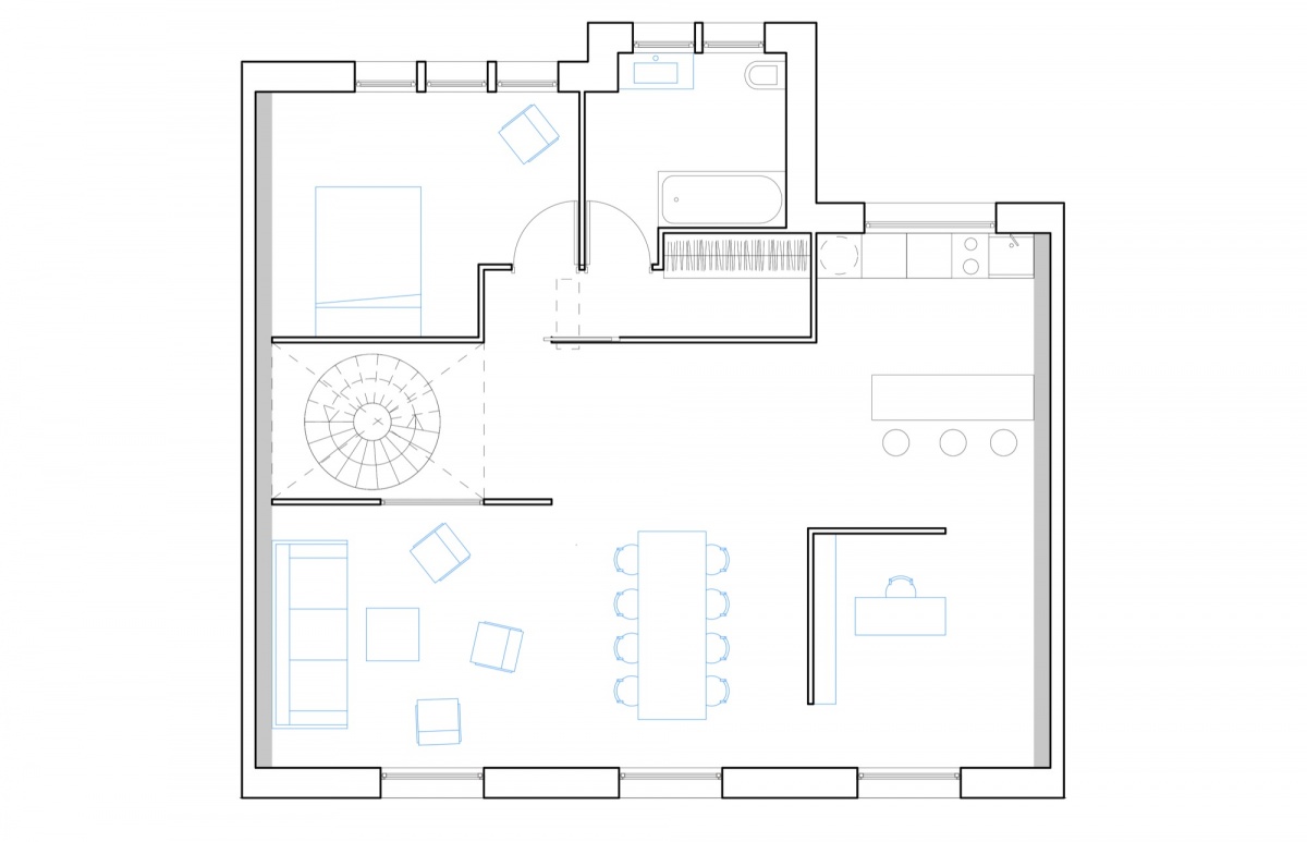
Le projet consiste à créer une surélévation sur un immeuble en R+2, afin de créer un duplex. Le bas du duplex était à la base un appartement T2 qui est transformé en niveau de chambres, la partie haute avec accès à la terrasse étant réservée à l'espace de vie. La construction est réalisée en ossature bois afin d'avoir un délais de chantier raccourcit et d'avoir une structure légère ne surchargeant pas trop le bâtiment existant. Un parement en brique vient donner du caractère à l'ensemble de l'immeuble en créant un attique qui résonne avec la brique des constructions voisines, et plus généralement avec la ville de Saint-Ouen où la brique est très présente.

Surélévation pour création d'un duplex avec terrasse
  • Surélévation pour création d'un duplex avec terrasse : SAINT OUEN existant depuis la rue copie
  • Surélévation pour création d'un duplex avec terrasse : SAINT OUEN coupes
  • Surélévation pour création d'un duplex avec terrasse : Cam_0 am
  • Surélévation pour création d'un duplex avec terrasse : Cam_1
  • Surélévation pour création d'un duplex avec terrasse : Cam_2
  • Surélévation pour création d'un duplex avec terrasse : SAINT OUEN plan niveau bas
  • Surélévation pour création d'un duplex avec terrasse : SAINT OUEN plan niveau haut
  • Surélévation pour création d'un duplex avec terrasse : SAINT OUEN pers depuis le jardin

Trouvez un architecte pour votre projet

Protection de vos données personnelles

Depuis toujours, architectes-france.com ne transfère aucune donnée personnelle à d'autres acteurs que ceux directement concernés par le projet (architectes, architectes d'intérieur...) et qui appartiennent à son réseau. Nos listes ne sont jamais transmises ou vendues à des partenaires extérieurs, même si ceux-ci appartiennent au domaine de la construction.
Toute modification dans ce domaine ne serait effectuée qu'avec votre consentement.

Je consens à ce que mes données personnelles soient collectées pour permettre à architectes-france de transférer votre projet aux architectes. Seul Architectes-france, ses équipes internes et la maitrise d'oeuvre concernée par le projet y ont accès. Aucune transmission de données à des tiers à l'exclusion de ceux décrits ci dessus n'est réalisée.

Mes données téléphoniques seront uniquement utilisées par Architectes-france.com et les architectes de notre réseau dans le cadre de la qualification et du suivi de mon projet.

Les données sont conservées pendant une durée de 18 mois courant à partir des derniers contacts effectifs entre architectes-france et vous ou architectes-france et un membre de la maitrise d'oeuvre en rapport avec ce projet et qui serait en relation avec architectes-france.

Conformément à la loi « informatique et libertés », vous pouvez exercer votre droit d'accès aux données vous concernant et les faire rectifier en contactant : Architectes-france, 23 avenue du Mirail - parc du Mirail - 33370 Artigues-près Bordeaux. Tél. 05.47.74.51.01 - contact@architectes-france.com

Trouvez un architecte pour votre projet

Protection de vos données personnelles

Depuis toujours, architectes-france.com ne transfère aucune donnée personnelle à d'autres acteurs que ceux directement concernés par le projet (architectes, architectes d'intérieur...) et qui appartiennent à son réseau. Nos listes ne sont jamais transmises ou vendues à des partenaires extérieurs, même si ceux-ci appartiennent au domaine de la construction.
Toute modification dans ce domaine ne serait effectuée qu'avec votre consentement.

Je consens à ce que mes données personnelles soient collectées pour permettre à architectes-france de transférer votre projet aux architectes. Seul Architectes-france, ses équipes internes et la maitrise d'oeuvre concernée par le projet y ont accès. Aucune transmission de données à des tiers à l'exclusion de ceux décrits ci dessus n'est réalisée.

Mes données téléphoniques seront uniquement utilisées par Architectes-france.com et les architectes de notre réseau dans le cadre de la qualification et du suivi de mon projet.

Les données sont conservées pendant une durée de 18 mois courant à partir des derniers contacts effectifs entre architectes-france et vous ou architectes-france et un membre de la maitrise d'oeuvre en rapport avec ce projet et qui serait en relation avec architectes-france.

Conformément à la loi « informatique et libertés », vous pouvez exercer votre droit d'accès aux données vous concernant et les faire rectifier en contactant : Architectes-france, 23 avenue du Mirail - parc du Mirail - 33370 Artigues-près Bordeaux. Tél. 05.47.74.51.01 - contact@architectes-france.com